摂津市正雀4丁目 新築戸建
新築戸建摂津市正雀4丁目 新築戸建
- 販売価格
- 4,380万円
- 種目
- 新築戸建
- 所在地
- 大阪府摂津市正雀4丁目
- 最寄り駅
-
- 阪急電鉄京都線 正雀 / 徒歩14分
- JR東海道本線 岸辺 / 徒歩20分
- 建物面積
- 118.7㎡(35.9坪)
- 土地面積
- 108.38㎡(32.78坪)
- 容積率
- 160%
- 建ぺい率
- 60%
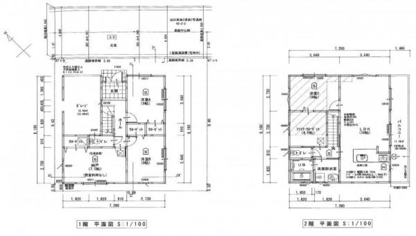
- 間取
- 4SLDK
- 構造
- 木造
- 特徴
-
- 都市ガス
- おすすめ
ポイント - ■各お部屋に収納あり ■駐車3台可能(車種制限あり)
物件に関するお問合せ(無料)
物件詳細情報
- 販売価格
- 4,380万円
- 種目
- 新築戸建
- 所在地
- 大阪府摂津市正雀4丁目
- 現況
- 空室
- 交通
-
- 阪急電鉄京都線 正雀 / 徒歩14分
- JR東海道本線 岸辺 / 徒歩20分
- 学校区
- 摂津市立味舌小学校(819m)
摂津市立第一中学校(1,565m)
- 間取
- 4SLDK
- 間取詳細
- -
- 引渡時期
- 相談
- 取引態様
- 媒介
- 建物面積
- 118.7㎡(35.9坪)
- 土地面積
- 108.38㎡(32.78坪)
- 容積率
- 160%
- 建ぺい率
- 60%
- 構造
- 木造
- 築年月
- 2025年6月
- 駐車場
- 空あり
- 税区分
- 税込
- 私道面積
- 21.9㎡
- 用途地域
- 第二種中高層住居専用地域
- 国土法届出
- 不要
- その他法令
- -
- 土地権利
- 所有権
- 階建
- 2階建
- セットバック
- -
- 都市計画
- 市街化区域
- 地目
- 宅地
- 地勢
- -
- 借地料
- -
- 借地年月
- -
- 面積計測方式
- 実測
- 接道状況
- 一方
- 位置指定道路
- -
- 接道方向
- 北東4m
- 総戸数
- -
- 販売戸数
- -
- 施設費用
- -
- 建築確認番号
- -
- 備考
- -
- 物件番号
- 11641872
更新日:2026/01/09
次回情報更新予定日:2026/01/23


